狛江市中和泉5丁目 新築戸建A号棟
- 価格
6,890万円
- 間取り
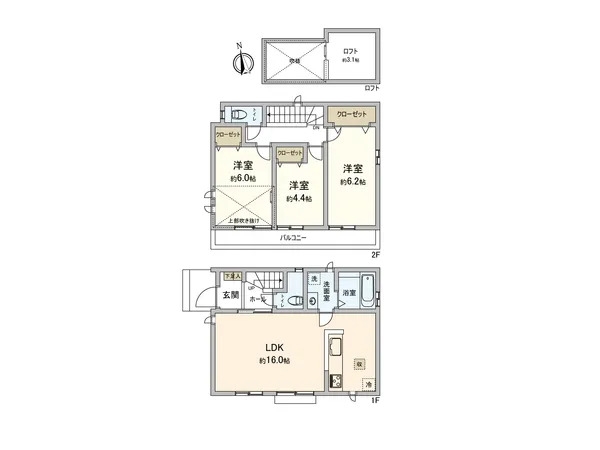
3LDK
-
建物面積
78.66m²(23.79坪)
-
土地面積
100.12m²(30.28坪)
- 築年月
2026年4月
- 所在地
東京都狛江市中和泉五丁目
- 最寄駅
小田急線 狛江駅 徒歩20分 , 京王線 国領駅
- 物件番号
080104

おすすめポイント
狛江市中和泉5丁目の新築戸建て全4棟。各居室に収納を備え、ロフトや吹き抜けのある開放的な住空間。ワイドバルコニー付きで暮らしにゆとりをプラス。駐車2台可能(車種による)で、ご家族のライフスタイルに対応する魅力の住まいです。
- 周辺施設
- スーパーオーケー狛江中和泉店552m
- その他施設1狛江こだま幼稚園386m
- その他施設2めぐみの森保育園631m
- その他施設3セブンイレブン狛江中和泉5丁目店350m
- 設備
オートバス / 追焚機能 / 浴室乾燥機 / 温水洗浄便座 / シャワー付洗面化粧台 / 3口以上コンロ / カウンターキッチン / オープンキッチン / システムキッチン / グリル / 食器洗浄乾燥機 / 浄水器 / 収納スペース / 全居室収納 / クローゼット / 床下収納 / 室内洗濯機置場 / 洗濯機置場 / 給湯 / 都市ガス / ロフト / 全居室フローリング / 電気 / 上水道 / 下水道 / ダブルロックドア / モニタ付インターホン / ワイドバルコニー / 駐車場2台分 / バルコニー / 洗面所独立
- 駐車場
有
- 特徴
■カウンターキッチン■ワイドバルコニー■日当たり通風良好■ロフト付き■吹き抜けあり■各室収納■2台駐車可
物件概要
- 所在地
東京都狛江市中和泉五丁目
- 価格
6,890万円
- 最寄駅
小田急線 狛江駅 徒歩20分 , 京王線 国領駅
- 向き
南西
-
建物面積
78.66m²(23.79坪)
-
土地面積
100.12m²(30.28坪)
- 築年月
2026年4月
- 間取り
3LDK
- 階/階建て
2階建
- 建物構造
木造
- 現況
未完成
- 駐車場
有
- 土地権利
所有権
- 地目
宅地
- 建ぺい率
40%
- 容積率
80%
- 用途地域
第一種低層住居専用地域
- 都市計画
市街化区域
- 引渡時期
相談
- 取引態様
一般
- 掲載期限
2026年02月15日
- 次回更新予定日
2026年02月15日
- 情報公開日
2026年01月15日
Googleマップで、物件の周辺地図の確認と、ストリートビューをご利用いただけます。
お問い合わせ
株式会社ディークラウド
東京都世田谷区喜多見9-2-33
TEL:03-5761-5605
FAX:03-5761-5606
定休日:火・水曜日
宅建免許番号 国土交通大臣(1)第8975号
所属団体 (公社)全日本不動産協会
保証協会 (公社)不動産保証協会






